Location
Bureaux
Cours de Verdun, 33000 Bordeaux

Bureaux
Surface 113 m² - non divisible
Loyer annuel 39 999,74 € HT-HC/an
Loyer m²/an 353,98 € HT-HC/m²/an
Disponibilité Immédiate
Nb. de postes de travail 0 poste
Honoraires agence : 30%HT du loyer annuel HT-HC
Un vrai coup de cœur : la terrasse et l’emplacement font toute la différence.
Maïtine Mathieu
Réf. LB-2025-07-008
À louer Bureaux - Bordeaux 33000 - 113m²
À louer Bureaux - Bordeaux 33000 - 113m²
À louer Bureaux - Bordeaux 33000 - 113m²
À louer Bureaux - Bordeaux 33000 - 113m²
À louer Bureaux - Bordeaux 33000 - 113m²
À louer Bureaux - Bordeaux 33000 - 113m²

Ce bien vous intéresse ?
Contactez-nous rapidement pour le visiter !

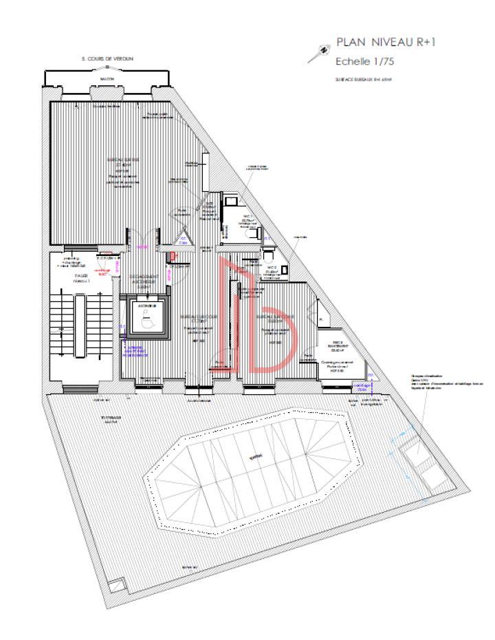
Tableau de surfaces

Étage Nature Surface(s) Loyer annuel Loyer annuel/m² Provision pour charges Nb parkings Parking inclus dans le prix Disponibilité
1 Bureaux 113 m² 39 999,74 € HT-HC/an 353,98 € HT-HC/m²/an 31,86 € HT/m²/an 0 - Immédiate

Description.

Dans un immeuble en monopropriété situé à proximité de la Place Tourny, découvrez ce plateau de bureaux en état neuf, d’une superficie totale de 80m². Avec la terrasse privative : 113m². Situés au 1er étage, ces espaces se composent d’un premier bureau donnant sur rue avec balcon, de deux bureaux lumineux côté cour, d’une pièce de rangement, de deux water-closets ainsi que d’une superbe terrasse privative de 64,67m² idéale pour vos pauses ou vos rendez-vous informels.
  • Neuf
  • Cloisonnement récent
  • Fenêtres traditionnelles
  • Parquet
  • Dalle minérale
  • Ascenseur
  • Escalier
  • Digicode
  • Visiophone
  • SAS d'entrée
  • Fibre
Pour plus d'informations,
demandez à notre agence les fiches complètes
Je demande

Conditions juridiques.

  • Type de bail : Commercial
  • Durée de bail : 3/6/9
  • Régime fiscal : TVA
  • Règlement des loyers : Trimestriel et avance
  • Régime d’indexation : Annuel

BORDEAUX JARDIN PUBLIC QUINCONCES.

Avec son magnifique parc arboré de près de 11 hectares en plein centre-ville, trésor du patrimoine Bordelais, le secteur du Jardin Public est l’un des quartiers les plus recherchés de la ville. Plébiscité pour son charme et son calme, ce quartier présente des opportunités immobilières de très belles factures : Hôtels particuliers et maisons de maître sont activement recherchés par tout acquéreur en quête de valeur et de patrimoine durable. Si les acquéreurs ne souhaitent pas communiquer sur les valeurs, il est certain que les bonnes affaires restent difficiles à réaliser. En choisissant de s’installer dans ce secteur, les entreprises projettent une image à la fois de stabilité financière mais aussi d’ambition maîtrisée. Extrêmement agréable à vivre au quotidien, ce secteur offre une proximité avec les commerçants sans commune mesure.
  • La Collation/ Gustave-Creative Street FOOD/MIFAN
  • Hôtel de Tourny / Hôtel de Sèze / Hôtel La Cour Carrée
  • Aéroport : 31 minutes en voiture
  • Gare : 19 minutes en voiture
  • Tramway : Tram C Gare de Blanquefort / Tram D - Cantinolle et Hippodrome
  • Parking public : Parking public METPARK - Grands Hommes

Diagnostic énergétique.

  • CE (Consommation énergétique) : En cours
  • GES (Émission gaz à effet de serre) : En cours
* HD/HT : Hors droit ou hors taxe selon la fiscalité du bien (Neuf ou ancien).

Dîtes-nous en plus
sur votre projet...

Téléphonez-nous
05 54 69 97 31

× Favoris Votre sélection Vous avez ajouté une offre dans votre sélection. Besoin de plus d'informations ? Contactez-nous !
Cookies fonctionnels (nécessaires)
Ces cookies sont essentiels au bon fonctionnement du site Web. Cette catégorie comprend uniquement les cookies qui garantissent les fonctionnalités de base et les fonctionnalités de sécurité du site Web. Ces cookies ne stockent aucune information personnelle.
Analyse de navigation
Ces cookies nous permettent d'analyser votre navigation et de mesurer l'audience de notre site.
reCaptcha
Ces cookies analysent votre navigation pour autoriser l'envoi des formulaires.
Retour
Ce site utilise des cookies techniques nécessaires à son fonctionnement et des cookies d’analyses statistiques permettant d’analyser les performances du site et établir des statistiques. En poursuivant votre navigation, vous acceptez l’utilisation de ces cookies.